RECENTE BILOCALE A PALAZZOLO MILANESE

In vendita
Paderno Dugnano - via Delle Gardenie, 14
Prezzo riservato
2 locali
Categoria
58
m2
2
Locali
1
Camere
1
Bagni
1
Posti auto
Descrizione
QUESTA PROPOSTA DI VENDITA È UN' ESCLUSIVA DI GHS CONSULENZE IMMOBILIARI.

Se cerchi una casa che unisca la modernità di un edificio riqualificato alla pace di un affaccio nel verde, questa è la soluzione ideale. Situato a Paderno Dugnano, nella frazione di Palazzolo Milanese, proponiamo in vendita un luminoso appartamento di 2 locali posto all'ultimo piano di un condominio signorile.

IL CONTESTO E LA POSIZIONE
L'edificio si presenta in condizioni impeccabili, grazie a una recente e completa ristrutturazione che ha riguardato il tetto, i terrazzi, i balconi e l'installazione del cappotto termico, garantendo efficienza e decoro. La posizione è il vero valore aggiunto: immersa nella quiete e nella privacy, la palazzina si trova a pochi passi dalla ciclabile del Villoresi e dal suggestivo viale Bagatti, perfetto per passeggiate all’aria aperta. Il centro della frazione, con tutti i servizi di prima necessità, è raggiungibile con una comoda camminata di soli 5 minuti.

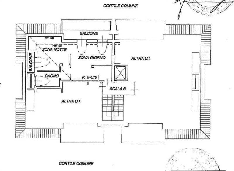
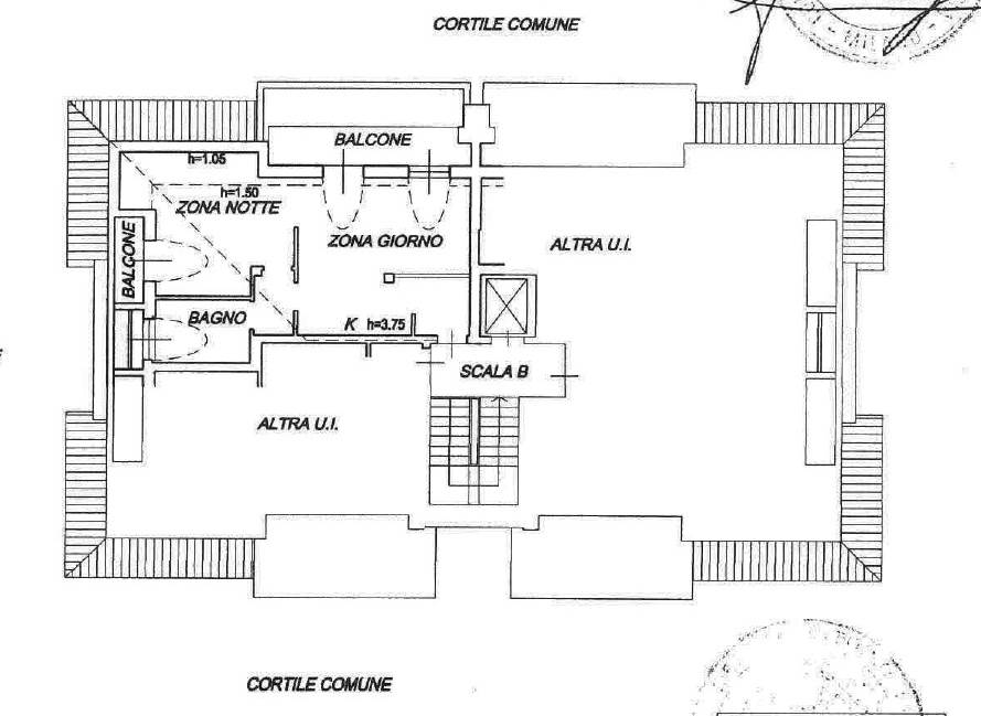
L’APPARTAMENTO
L'immobile si distingue per il taglio moderno e le ottime finiture: il cuore della casa è la zona giorno con accesso a uno splendido terrazzino di 16 mq, uno spazio esterno vivibile con vista aperta e panoramica sul verde circostante.
L'appartamento è così composto:
• Zona living luminosa con cucina a vista;
• Camera matrimoniale con secondo balcone;
• Bagno finestrato.

FINITURE E ACCESSORI
L'immobile è pronto per essere abitato e vanta dotazioni di ottimo livello:
• Elegante pavimentazione in parquet in tutti gli ambienti (eccetto il bagno);
• Infissi in legno con doppio vetro e zanzariere;
• Impianto di condizionamento e sistema di allarme già installati;
• Caldaia a condensazione sostituita nel 2023.

Completano l’offerta il mobilio della cucina (elettrodomestici inclusi) una pratica cantina e un posto auto interno di proprietà all'interno del contesto condominiale.

Una soluzione perfetta per giovani coppie o professionisti che cercano un rifugio rigenerante senza rinunciare alla vicinanza con Milano e ai collegamenti cittadini.

Assolutamente da vedere!

I dati e le informazioni di questa scheda illustrativa sono da ritenersi, in ogni caso, puramente indicativi e comunque variabili. Qualsiasi loro alterazione esclude la responsabilità di GHS Consulenze Immobiliari.
Caratteristiche principali
Codice:
V000059
Città:
Paderno Dugnano
Categoria:
2 locali
Spese condominiali:
1.150 € / anno
Locali:
2
Camere:
1
Bagni:
1
Mq:
58
Posti auto:
1
Balconi:
1
Terrazzi:
1
mq Terrazzo:
16
Piano:
5
Anno:
2008
Classe energetica:
B
66,24
Stato Immobile:
Ottimo
Grado:
Medio
Orientamento:
Nord Est
Lati Liberi:
2
Giardino:
Comune
Arredi:
Solo Cucina
Tipo Soggiorno:
Soggiorno
Tipo Cucina:
A Vista
Riscaldamento:
Autonomo
Tipo Riscaldam.:
Caldaia a Condensazione
Tipo Impianto:
Radiatori
Fonte Energetica:
Gas
Raffrescamento:
Split
Infissi:
Legno Doppio Vetro
Pavim. Giorno:
Parquet
Pavim. Notte:
Parquet
Pavim. Bagno:
Ceramica
Accesso Disabili:
Nessuna Barriera
Accesso interno disabili:
Parziale
Accessori
Antifurto
Aria Condizionata
Ascensore
Doppi Vetri
Porta Blindata
Video Citofono
Zanzariere
Mappa
Video
Planimetrie
Cookie preference