SENAGO: 2 LOCALI RISTRUTTURATO

In vendita
Senago - via Fratelli Rosselli, 3
125.000 €
2 locali
Categoria
66
m2
2
Locali
1
Camere
1
Bagni
Descrizione
QUESTA PROPOSTA DI VENDITA È UN' ESCLUSIVA DI GHS CONSULENZE IMMOBILIARI.

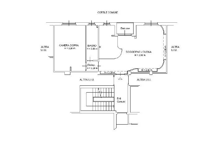
Se cerchi una soluzione pronta all'uso, senza stress di ristrutturazioni e con spese di gestione sotto controllo, questo appartamento è la scelta perfetta. Situato in una posizione strategica al confine con Paderno Dugnano, proponiamo in vendita ampio 2 locali di 66 mq in ottime condizioni generali.

L’appartamento si trova al primo piano di un condominio degli anni '60 e offre una distribuzione degli spazi moderna e funzionale:
• Zona Giorno: ampio living con cucina a vista, perfetto per ottimizzare gli spazi e creare un ambiente conviviale.
• Outdoor: accesso diretto al balcone dalla zona giorno.
• Zona Notte: camera da letto matrimoniale spaziosa e confortevole.
• Servizi: bagno finestrato rifinito con cura.
• Pertinenze: cantina di proprietà inclusa.

Punti di Forza
• Condizioni: ottimo stato generale, pavimentazioni moderne e finiture di qualità.
• Comfort: impianto di condizionamento con 2 split (zona giorno e camera).
• Riscaldamento: autonomo (per gestire i consumi in totale libertà).
• Arredo: l’immobile viene consegnato parzialmente arredato, pronto per essere abitato o affittato subito.
• Disponibilità: libero immediatamente!

L’immobile è ideale per giovani coppie o single che desiderano smettere di pagare l'affitto: Possibilità di finanziamento con Mutuo al 100%.

I dati e le informazioni di questa scheda illustrativa sono da ritenersi, in ogni caso, puramente indicativi e comunque variabili. Qualsiasi loro alterazione esclude la responsabilità di GHS Consulenze Immobiliari.
Caratteristiche principali
Codice:
V000060
Città:
Senago
Categoria:
2 locali
Spese condominiali:
980 € / anno
Locali:
2
Camere:
1
Bagni:
1
Mq:
66
Balconi:
1
Piano:
1
Anno:
1962
Classe energetica:
E
131,15
Stato Immobile:
Ristrutturato
Grado:
Medio
Orientamento:
Est
Lati Liberi:
1
Giardino:
No
Arredi:
Semi Arredato
Tipo Soggiorno:
Sala da Pranzo
Tipo Cucina:
A Vista
Riscaldamento:
Autonomo
Tipo Riscaldam.:
Caldaia
Tipo Impianto:
Radiatori
Fonte Energetica:
Gas
Raffrescamento:
Split
Infissi:
Alluminio Doppio Vetro
Accesso Disabili:
No
Accessori
Aria Condizionata
Doppi Vetri
Porta Blindata
Mappa
Video
Cookie preference